Máté

Típusházak
  • Nettó alapterület:
    112 m2
  • Kulcsrakész alap ár:
  • 84.2 M Ft + ÁFA
  • Kulcsrakész EXTRA ár:
  • 90.1 M Ft + ÁFA

MÁTÉ TIPUSHÁZUNK BEMUTATKOZIK:

Nettó alapterület: 112,21 m2 + 1,02 m2 fedett bejárat + 6,27 m2 terasz

Az ár tartalmazza a komplett tervdokumentációt egyszerű bejelentéssel!

  • Napelem előkészítéssel
  • Korszerű kondenzációs gázkazán, padlófűtéssel
  • Alapozás: az építész és statikai terveknek megfelelően csömöszölt sávalap, vasalt talpgerendával főfalak alatt, valamint 12 cm vastag vasbetonlemezzel.

  • Falazat Porotherm 30 X-therm N+F okostégla, amely 15 cm-es Austrotherm grafitos hőszigeteléssel ellátott.

  • Válaszfalak Porotherm 10-es vagy Ytong 10-es válaszfal téglából készülnek. Kérhető Gipszkarton válaszfal hangszigeteléssel is!

  • Tetőszerkezet gomba és rovarölőszerrel kezelt faszerkezet. Látszó részek lambériával burkolva színű vékonylazúrral festve. Bramac vagy Leier beton cserép fedéssel. A bádogos szerkezetek színes alumíniumból készülnek!

  • Külső megjelenésében az épület 1.5 mm nemesvakolattal (fehér), valamint természetes kő (VRACA 30x60x1,2 cm mészkő) burkolattal lesz ellátva.

  • Homlokzati nyílászárok Rehau /Gealan 6 légkamrás, 3 rétegű üvegezéssel, fehér színben kerülnek beépítésre. Beépített redőnytokokkal, kézi működtetésű hőszigetelt redőnnyel és helyiségenként egy rolós szúnyoghálóval.

  • Belső ajtók kilinccsel (szabvány dekor beltéri ajtók), többféle színben választható. Bruttó 120 000.- Ft-ig.

  • Bejárati ajtó : Bruttó 215 000.- Ft-ig.

  • Gázfűtés/melegvíz ellátás: A családi lakóház fűtése és használati meleg víz ellátása korszerű, kondenzációs 24 KW-os BAXI gázkazánnal és padlófűtéssel készül. Padlófűtés
    osztó-gyűjtő 1-8 körig szekrénnyel, szereléssel, gázkazán bekötéssel. A fűtés digitális, hordozható termosztáttal szabályozható. A gázkazán beüzemelés díját az árajánlat nem
    tartalmazza. A belső közmű és gázterv elkészítése, engedélyeztetése és rákötése megrendelő költsége. A vízvezetékrendszer unipress ötrétegű csővezetékekkel, a szennyvíz-csatornázás KG-PVC lefolyócsővel szerelten kerül kiépítésre,víz- és szennyvíz kiállás készül.

  • Klíma előkészítés:1db klíma kiállás egyeztetett helyre

  • Az elektromos hálózat teljes kiépítésre kerül az épületen belül és a külső homlokzaton!

  • Az elektromos szerelvények fehér (LEGRAND VALENA, VALENA LIFE) kapcsolók és konnektorok (világító testek nélkül)!

  • A világítótestek felszerelését egyszeri, leegyeztetett időpontban az ár tartalmazza. Kivétel a LED-szalag rejtett világitás egyéb díszitő világítások! Az elektromos konyhai gépek, valamint egyéb (TV-ROUTER STB.) elektromos eszközök beszerelését beüzemelését az ár nem tartalmazza!

Kulcsrakész ALAP ár: 84.200.000 Ft + ÁFA

  • Alapozás: az építész és statikai terveknek megfelelően csömöszölt sávalap, vasalt talpgerendával főfalak alatt, valamint 12 cm vastag vasbetonlemezzel.

  • Falazat Porotherm 30 X-therm N+F okostégla, amely 15 cm-es Austrotherm grafitos hőszigeteléssel ellátott.

  • Válaszfalak Porotherm 10-es vagy Ytong 10-es válaszfal téglából készülnek. Kérhető Gipszkarton válaszfal hangszigeteléssel is!

  • Födém monolit vasbeton szerkezet 30 cm kőzetgyapot vagy fújt cellulóz szigeteléssel ellátva.

  • Tetőszerkezet gomba és rovarölőszerrel kezelt faszerkezet. Látszó részek lambériával burkolva dió színű vékonylazúrral festve. Bramac vagy Leier barna színű beton cserép fedéssel. A bádogos szerkezetek színes alumíniumból készülnek!

  • Külső megjelenésében az épület 1.5 mm nemesvakolattal (fehér), valamint természetes kő (VRACA 30x60x1,2 cm mészkő) burkolattal lesz ellátva.

  • Homlokzati nyílászárok Rehau /Gealan 6 légkamrás, 3 rétegű üvegezéssel, fehér színben kerülnek beépítésre. Beépített redőnytokokkal, kézi működtetésű hőszigetelt redőnnyel és helyiségenként egy rolós szúnyoghálóval.

  • Belső ajtók kilinccsel (szabvány dekor beltéri ajtók), többféle színben választható. Bruttó 120 000.- Ft-ig.

  • Bejárati ajtó : Bruttó 215 000.- Ft-ig.

  • A hűtés-fűtést, valamint a használati melegvizet hőszivattyú (8 KW, REHEMA, MITSUBISHI) készülék biztosítja! A padló és mennyezet hűtés-fűtés – mely időjárás követő – helyiségenként vezérelt! A vezérlés NGBS/ Wavin időjáráskövető alkalmazáson keresztül is vezérelhető! A készülék beüzemelését az ár tartalmazza.

  • Az elektromos hálózat teljes kiépítésre kerül az épületen belül!

  • Az elektromos szerelvények fehér (LEGRAND VALENA, VALENA LIFE) kapcsolók és konnektorok (világító testek nélkül)!

  • A világítótestek felszerelését egyszeri, leegyeztetett időpontban az ár tartalmazza. Kivétel a LED-szalag rejtett világitás egyéb díszitő világítások! Az elektromos konyhai gépek, valamint egyéb (TV-ROUTER STB) elektromos eszközök beszerelését beüzemelését az ár nem tartalmazza!

Kulcsrakész EXTRA ár: 90.100.000 Ft + ÁFA

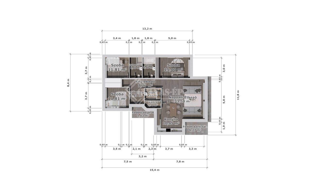
–         nappali-konyha-étkező: 44,45 m2 (konnektorok száma: 15 db, kapcsolók: 5db)

–         hálószoba: 15 m2 (konnektorok száma: 5 db, kapcsolók: 2 db)

–         szobák:2 x 11,81m2 (konnektorok száma:5db, kapcsolók: 2 db/szoba)

–         háztartási helyiség: 4,11 m2 (konnektorok száma: 2 db, kapcsolók: 1 db)  

–         kamra: 2,30 m2 (kapcsolók: 1 db)

–         fürdőszoba: 5,40 m2 (konnektorok száma: 3 db, kapcsolók: 1 db)

–         zuhanyzó: 5,40 m2 (konnektorok száma: 2 db, kapcsolók: 1 db)

–         előszoba: 4,93 m2 (konnektorok száma: 1 db, kapcsolók: 1 db)

–         közlekedő: 7 m2 (konnektorok száma: 1 db, kapcsolók: 2 db)

–        fedett bejárat: 1,02 m2 (kapcsolók: 1 db)

–        terasz: 6,27 m2 (konnektorok száma: 1 db, kapcsolók: 1 db)

– 2 db beépített WC + tető + nyomólap fehér színben (GEBERIT) 140.000, – Ft-ig

– 2 db mosdó + 2 db csap (GROHE) 150.000, – Ft-ig

– 1 db kád csapteleppel (GROHE) 120.000, – Ft-ig

– 1 db épített zuhany csapteleppel, üvegfal nélkül (GROHE) 120.000, – Ft-ig

Informatikai hálózat (belső), védőcsövezése kiépítésre kerül! Az ár nem tartalmazza a kábelezést és a végpontok kiépítését!

A Riasztórendszer védőcsövezése 4 db mozgásérzékelőnek, 1 db kezelőnek, egy db kültéri egységnek kiépítésre kerül. Az ár nem tartalmazza a kábelezést és a riasztó rendszer árát! A napelemes rendszer kiépítéséhez védőcső kiépítésre kerül.

Az ár tartalmazza ezeken felül a háztartási gépek (mosógép, mosogatógép, mosogatótálca) vízbekötéséhez szükséges sarokszelepeit!

A belső falak vakolva vagy gipszkartonnal burkolva készülnek.

A festés 2 soros gletteléssel, fehér vagy pasztellszínben készül! Egyéb díszítő festés, díszítés, stukkók ragasztása, tapétázás, rejtett világításnak gipszkarton szerkezet építése, festése külön megegyezés alapján kérhető!

A hideg és meleg burkolatainak beépítését (normál méretű lapok, járólap) 30×30-tól 60×60-as méretig, (csempe esetén) 25×30-tól 30×60-as méretig az ár tartalmazza!

Csempézést fürdőben-zuhanyzóban 2,1 m magasságig, WC-ben 1,5 m magasságig tartalmazza az ár!

Konyhában 4 m2 csempeburkolatot és annak burkolást tartalmaz az ár!

Az ár L profilú alumínium élvédőket tartalmaz!

Bordűr-díszítő elemek, színes élvédők, valamint a megadottól eltérő lapméretek esetén az ár a leendő lapok és beépíteni kívánt anyagok ismeretében kerül meghatározásra!!!

A hidegburkolatok (csempe, járólap, fuga anyag), valamint melegburkolatok (laminált padló, szegély, alátét) kiválasztása, megrendelése, a helyszínre szállítása a vevő feladata – a kivitelezővel előre egyeztetett időpontban!

Hidegburkolatok/fugaanyag és színazonos szilikon: 7.500, – Ft/m2-ig tartalmazza az ár.

Melegburkolatok/alátét/szegőléc: 6.500, – Ft/m2-ig tartalmazza az ár.

Az összes megadott ár bruttó ár!!!!

AZ ÁR NEM TARTALMAZZA A KERITÉSEK, TÉRBURKOLATOK, EGYÉB KÜLSŐ MUNKÁK ÁRÁT.

–         elektromos hálózat épületre kötése,

–         kamera és informatikai végpontok kiépítése Cat5 kábellel,

–         cirkulációs kör kiépítése,

–         vízlágyító kiállás előkészítése,

–         BWT AQA Perla Bio + 50 vagy 75 központi vízlágyító,

–         elektromos redőny távirányítóval vagy kapcsolóval,

–         öntöző kút,

–         utcafronti kerítés,

–         telekhatár kerítés 3D vagy beton elemes,

–         szürke, színes térkő burkolat,

–         utcai személy és gépkocsi bejáró kiépítése,

–         napelem rendszer kiépítése,

–         medence építése,

–         kert tervezés, építés,

–         konyhabútor,

–         riasztó rendszer kiépítése komplett,

–         elektromos törölközőszárító radiátor 70*1200 fűtőpatronnal.

A műszaki tartalomban megjelölt beépítendő anyagoktól a kivitelező eltérő anyagok beépítésére jogosult! Figyelemmel arra, hogy a műszaki tartalomban meghatározott anyagokkal megegyező vagy jobb minőségű anyag kerülhet csak beépítésre! A műszaki tartalom minden esetben aláírás ellenében vehető át!

A szerződéskötés aláírásáig a műszaki tartalom tájékoztató jellegű, a módosítás jogát fenntartjuk.

Galéria

Alaprajzok

Gulyás-Ép Magyarország Kft.
Adatvédelmi áttekintés

Ez a weboldal sütiket használ, hogy a lehető legjobb felhasználói élményt nyújthassuk. A cookie-k információit tárolja a böngészőjében, és olyan funkciókat lát el, mint a felismerés, amikor visszatér a weboldalunkra, és segítjük a csapatunkat abban, hogy megértsék, hogy a weboldal mely részei érdekesek és hasznosak.